











residential
Pietra Lake Castle
by Pietra Infrastructure
Society, Ambegaon Budruk, Pune, Maharashtra
Pietra Infrastructure
Developer
Project Overview
- Possession
- January 2023
- Launch Date
- November 2018
- Total Area
- 60 Acres
- Unit Sizes
- 472.32 - 623.23 sq.ft.
About the Project
Ambegaon is blessed with a beautiful lake with a history of more than 70 years. 1&2 BHK Lakeside Apartments. Enjoy Uninterrupted Panoramic Water View Premium 2 BHK Lakeside Homes.
Amenities
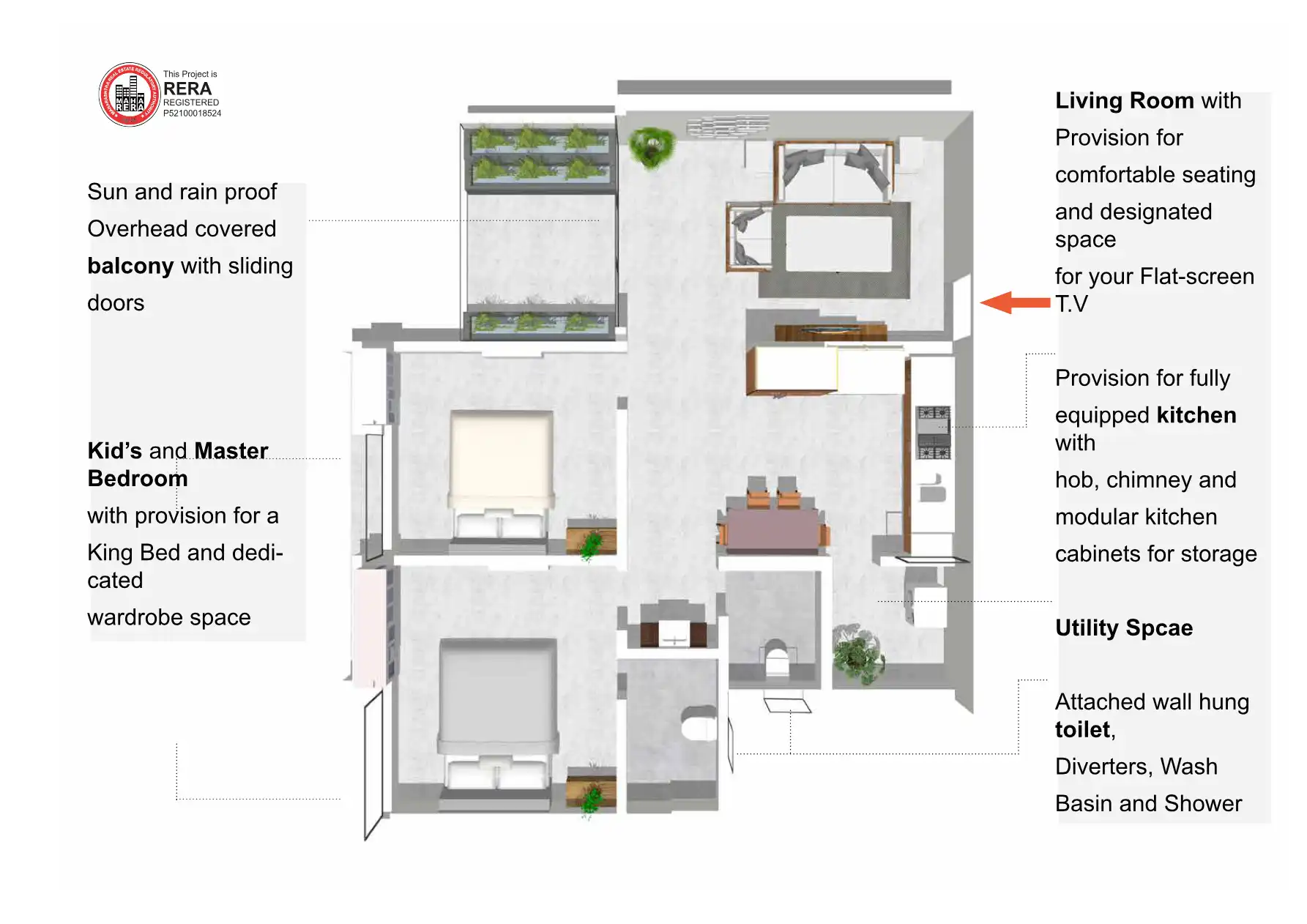
Pietra Lake Castle Floor Plans & Layout






Properties in Pietra Lake Castle
No inventory listed for this project
As soon as owners and agents list homes in this complex, they'll appear here.
Locality & Connectivity
utility
1 nearby
Police Station
1.5km
Top Agents for Pietra Lake Castle
No top agents listed yet for this project.
Be the first one to get featured as a top agent.
About the Developer
Pietra Infrastructure
Developer / Promoter
Project Overview
- Possession
- January 2023
- Launch Date
- November 2018
- Total Area
- 60 Acres
- Unit Sizes
- 472.32 - 623.23 sq.ft.
Verified Deals. Expert Brokers. Zero Guesswork.
AI-powered matching meets India's most trusted broker network. Buy or sell property with complete confidence.
Buy or Sell with Confidence
Instant Match, Faster Deals
India's Largest Verified Network
Your Dream Property
Starts Here
Fill out the form and let PropHunt.ai match you with the perfect commercial or residential space in Pietra Lake Castle
- Verified Properties Only
- Direct Builder Connection
- Free Site Visit Assistance
- Best Price Guarantee
Discover nearby projects around Pietra Lake Castle
Properties for Sale
- Studio Apartments for Sale near Pietra Lake Castle
- 1 BHK Flats for Sale near Pietra Lake Castle
- 2 BHK Flats for Sale near Pietra Lake Castle
- 3 BHK Flats for Sale near Pietra Lake Castle
- 4 BHK Flats for Sale near Pietra Lake Castle
- 5 BHK Flats for Sale near Pietra Lake Castle
- Commercial Spaces for Sale near Pietra Lake Castle
- Office Spaces for Sale near Pietra Lake Castle
Properties for Rent
- Studio Apartments for Rent near Pietra Lake Castle
- 1 BHK Flats for Rent near Pietra Lake Castle
- 2 BHK Flats for Rent near Pietra Lake Castle
- 3 BHK Flats for Rent near Pietra Lake Castle
- 4 BHK Flats for Rent near Pietra Lake Castle
- 5 BHK Flats for Rent near Pietra Lake Castle
- Commercial Spaces for Rent near Pietra Lake Castle
- Office Spaces for Rent near Pietra Lake Castle
More about this Location
Where is Narhe Gaon located in Pune?
Narhe Gaon is a rapidly developing residential locality situated in the southwestern part of Pune. It is well-connected to major areas like Dhayari and Ambegaon Budruk, and is known for its proximity to educational institutions and healthcare facilities, making it a convenient place to live.
What are the key educational institutions in and around Narhe Gaon?
Narhe Gaon is a prominent educational hub, hosting several renowned institutions. These include Zeal College of Engineering and Research, JSPM Narhe Technical Campus, Smt. Kashibai Navale Medical College, Sinhgad Institute of Technology and Science (SITS), and Podar International School (Ambegaon), offering diverse academic opportunities.
How is the connectivity and transportation in Narhe Gaon?
Narhe Gaon offers good connectivity, primarily facilitated by the Narhe Bus Stand and its proximity to major roads, ensuring easy access to other parts of Pune. The area is well-served by public transport, making daily commuting convenient for residents and students alike.
What kind of real estate options are available in Narhe Gaon?
Narhe Gaon presents a diverse range of residential properties, predominantly 1, 2, and 3 BHK apartments, catering to various budgets and family sizes. Notable completed projects include Omkar Nandan by Phoenix Enterprises and Sinhgad Planet B Wing by Anant Narayan Gandale, offering modern living spaces.
What are the major healthcare facilities near Narhe Gaon?
Residents of Narhe Gaon have access to quality healthcare services with several prominent facilities nearby. These include Smt. Kashibai Navale Medical College and General Hospital, Navle Hospital, and Siddhivinayak Hospital in the adjacent Dhayari area, ensuring comprehensive medical care.
Are there any upcoming or notable residential projects in Narhe Gaon?
Yes, Narhe Gaon is witnessing significant residential development. Sai Prestige by Vision Infra offers 1 and 2 BHK apartments with possession expected in Dec 2024. Additionally, Opulence Towers by NABAR ASSOCIATES is an upcoming project featuring 2 and 4 BHK flats, slated for possession in Dec 2027.
What makes Narhe Gaon an attractive locality for investment?
Narhe Gaon's appeal for real estate investment stems from its robust educational infrastructure, improving connectivity, and the continuous development of residential and commercial projects. Developers like Kumar Enterprises (Kumar Omkar Shree) and Bhumkar Promoters (Keshav Rukmini Sankul) have contributed to its growth, indicating strong future potential.
What lifestyle and amenities does Narhe Gaon offer its residents?
Narhe Gaon provides a comfortable lifestyle with essential amenities. It offers proximity to employment hubs like Platinum Tech Park, various retail spaces such as Vision Square by Siddhivinayak Groups, and a range of educational institutions, making it an ideal location for families and professionals seeking convenience and growth.











